Antico casale con ampio terreno zona Trappitello!!

Taormina (Messina)

Rif: IMMO-124379661
Condividi Linkedin Whatsapp Stampa
€ 570.000
Rustico casale
298 Mq
10 Vani
Giardino
Classe energetica G
7 Camere
MG Mediazioni sas Gruppo Immobiliare propone alla sua clientela un ottimo casale con ampio terreno con progetto per la realizzazione di una struttura ricettiva di pregio!! Si tratta di un terreno pianeggiante, esteso in mq. 7.400 circa, con all'interno un casale di antica costruzione che conserva intatto il suo fascino e lo stile tipico delle costruzioni in stile siciliano. La sua posizione strategica, facilmente collegato con tutti i principali punti di interesse turistico, lo rendono appetibile per la realizzazione di un progetto già studiato nei particolari per la realizzazione di una struttura ricettiva di particolare prestigio, idonea anche come centro benessere e sala ricevimenti con la possibilità di realizzazione di una suggestiva piscina!! Si allegano al presente annuncio alcune immagini del progetto pronto da realizzare!! Ci rivolgiamo ad imprenditori ambizioni e pronti a scommettere su un idea dal successo garantito!! Le caratteristiche dell'immobile lo rendono idoneo anche per un utilizzo privato per chi ama circondarsi di bellezza e tranquillità!! Maggiori e più dettagliate informazioni saranno fornite dai nostri consulenti immobiliari incaricati alla vendita previo appuntamento da concordare!! La scelta di una nuova casa è un momento importante per questo motivo MG Mediazioni s.a.s Gruppo Immobiliare pone al centro della sua attività il Cliente e le sue esigenze. La nostra azienda opera nel mercato immobiliare da un ventennio, contraddistinto da una costante crescita e con l'orgoglio di aver creato un team di professionisti pronti a soddisfare ogni esigenza, ponendosi ad oggi come punto di riferimento nel mercato immobiliare locale. L'obiettivo è quello di seguire il Cliente nella scelta della soluzione immobiliare più adatta alle sue esigenze, assisterlo nella scelta del mutuo ed offrire una consulenza tecnica, legale, notarile e condominiale con informazioni precise e puntuali. Dei nostri immobili in vendita ed in affitto disponiamo di tutta la documentazione e delle informazioni necessarie a soddisfare ogni richiesta del cliente, infatti, la nostra Agenzia Immobiliare propone immobili con incarico di esclusività per rendere limpido e lineare il percorso di acquisto o locazione, pertanto, si ringraziano i Clienti proprietari per la fiducia concessa. Per info e dettagli 095.931262 - 340.5630556 Responsabile agenzia Giuseppe Rag. Arcidiacono.

Dettaglio immobile

Contratto Vendita
Rif IMMO-124379661
Prezzo € 570.000
Provincia Messina
Comune Taormina
Indirizzo Via Cannizzoli
Superficie 298 mq
Vani 10
Camere 7
Classe energetica G (DL 192/2005)
EPI 175 kwh/m2 anno
Riscaldamento inesistente
Condizioni da ristrutturare
Anno di costruzione 1950
Ascensore no
Cantina si
Parcheggio si
Giardino
Taverna si
Balcone si
Terrazza si

Consistenze

Descrizione Superficie Sup. comm.
Principali
Altro - piano terra 41 Mq 41 Mqc
Altro - piano terra 56 Mq 56 Mqc
Altro - piano terra 59 Mq 59 Mqc
Immobile - piano terra 142 Mq 142 Mqc
Accessorie
Terreno - piano terra 7.396 Mq 7.396 Mqc
Totale 7.694 Mqc

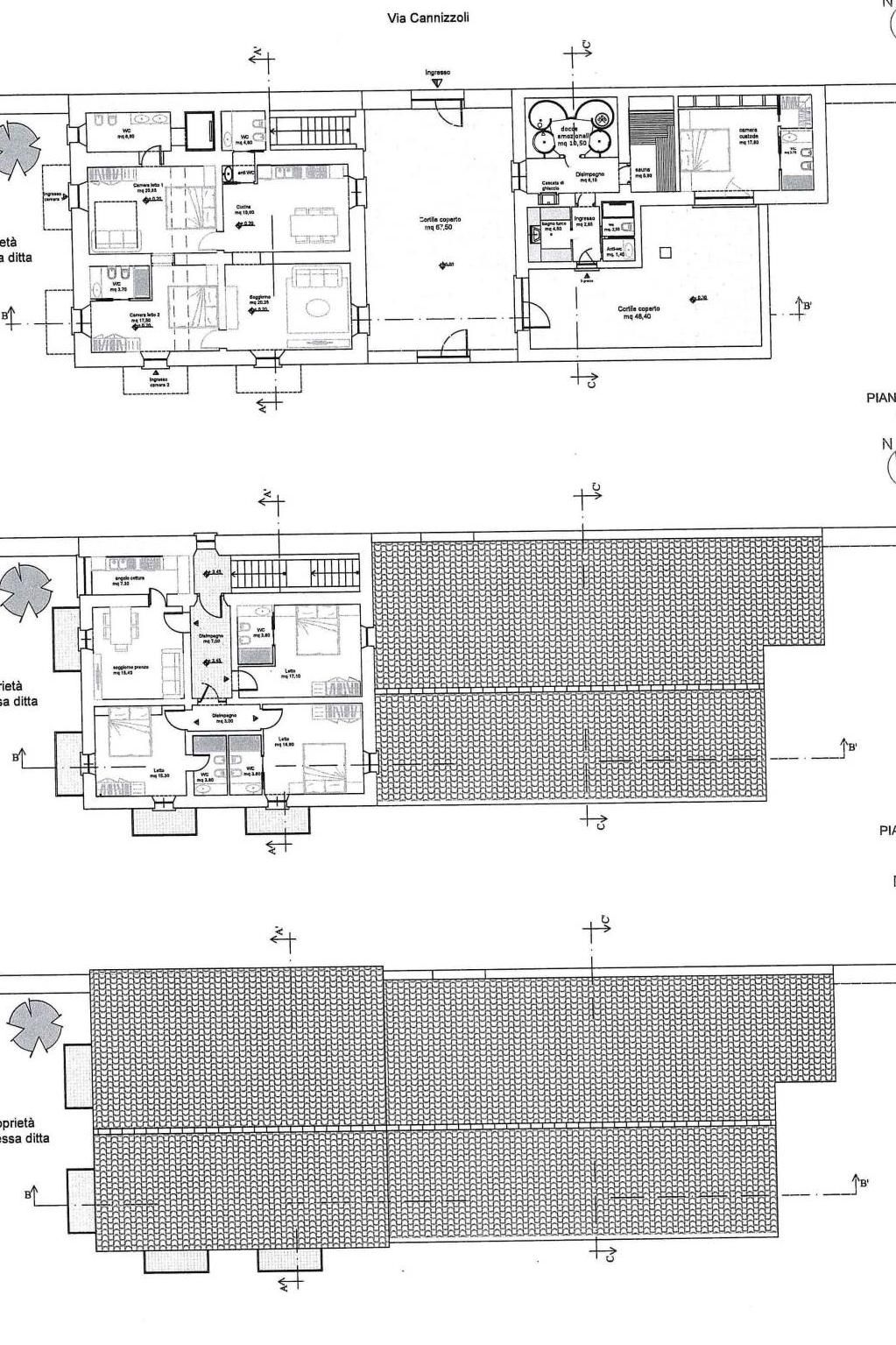
Planimetrie

Richiedi maggiori informazioni

Autorizzazione al trattamento dei dati personali+
Dichiaro di aver letto l'informativa sulla privacy ed accetto le condizioni d'utilizzo del servizio.
Riempi il campo con il codice riportato nell'immagine*
Codice Captcha
Chiamaci Contattaci